豊かな暮らしが叶う
おしゃれな
リノベーションマンション
SALE <売中古マンション>/名古屋市瑞穂区
リノベーション済み
価格:22,500,000円
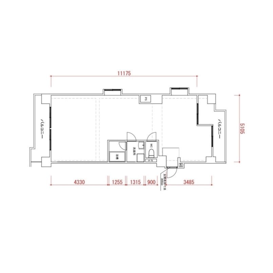
面積:64.85㎡
間取:1LDK
【新瑞橋駅徒歩約5分、妙音通駅徒歩約5分】


3方窓で明るいお部屋です

ワンルームの広々リビング

スタイリッシュなキッチン

ガラスの扉が印象的でポイント

広々リビング

ベットスペースにもできる

クローゼットはミッキー柄の壁紙が可愛い

インテリアを楽しめる要素がちりばめられた空間

洗面室とお風呂

お風呂

ホテルのような洗面室の空間

黒の壁紙でスタイリッシュな印象のトイレ

トイレの内装もおしゃれな空間

玄関スペース隣の空間

玄関は照明が印象的

最上階 エレベーターすぐです

見晴らしも日当たりも良いバルコニー

高い建物が周りにないので最上階の展望も楽しめます!
<おすすめポイント>
◎最上階 角部屋
◎2駅利用 徒歩約5分
◎全室USBコンセント
◎高断熱などの高機能も考えられた設備
◎サロンのようなおしゃれな空間
◎リノベーション履歴2019年1月
ライオンズマンションの優美さを残しながらゆとりある暮らしが叶うお部屋にリノベーションしたマンションです。
スタイリッシュなデザインに、センス光る装飾、住む人のセンスによってより輝きをますような余白を残した贅沢な空間になっています!
周辺の高級住宅街に見合った住空間に、2つの駅から徒歩約5分の立地。
近くに大型スーパーもありお買い物も便利、生活環境も良いです。
二重サッシに銃断熱効果で高機能なお部屋です。
日当たりも風通しも良い三方面窓があるもの魅力的です。
一人、またはご夫婦での居住用でもよし、隠家的な高級サロンにもおすすめです。
高級住宅街も近く集客を考えても、事業用でも良い立地と思われます。
LAYOUT


名古屋市瑞穂区妙音通
中古売りマンション
所在地: | 愛知県名古屋市瑞穂区妙音通4丁目52 |
---|---|
交通: | 名古屋市営地下鉄桜通線「新瑞橋駅」徒歩約5分 |
マンション名 | ライオンズマンション新瑞橋第二 |
---|---|
販売価格 | 22,500,000円 |
専有面積 | 64.85㎡(壁芯) |
総戸数 | 18戸 |
土地権利 | 所有権 |
用途地域 | 近隣商業地域 |
構造規模 | RC7階建7階部分 |
築年月 | 1984年8月 |
管理形態 | 全部委託 |
管理方式 | 巡回管理 |
施工会社 | 関組 |
現状 | 空き家 |
駐車場 | なし |
バイク置場・駐輪場 | あり(無料) |
設備 | 都市ガス・給湯・エレベーター |
設備・仕様 | ユニットバス・タンクトイレ・洗面化粧台・ミラーキャビネット |
リノベーション内容 | 2019年1月 |
管理費 | 管理費:13,500円 |
引渡し | 相談 |
主要採光面 | 南向き |
情報更新日 | 2022年2月8日 |
取引形態 | 一般媒介(仲介手数料3%+6万円) |
物件NO | SM2001 |
・徒歩距離は1分80mで算出しています
・事務所。サロンの方はご相談ください。
↓お問い合わせ物件NO | SM2001 |
---|
[%new:New%] |
|
---|---|